Arquitectura Industrial: En QiLA Arquitectura, diseñamos e implementamos soluciones integrales para instalaciones industriales, enfocándonos en la funcionalidad y sostenibilidad de los espacios. Nos especializamos en:
Planificación territorial para optimizar la utilización del suelo y la integración de infraestructuras.
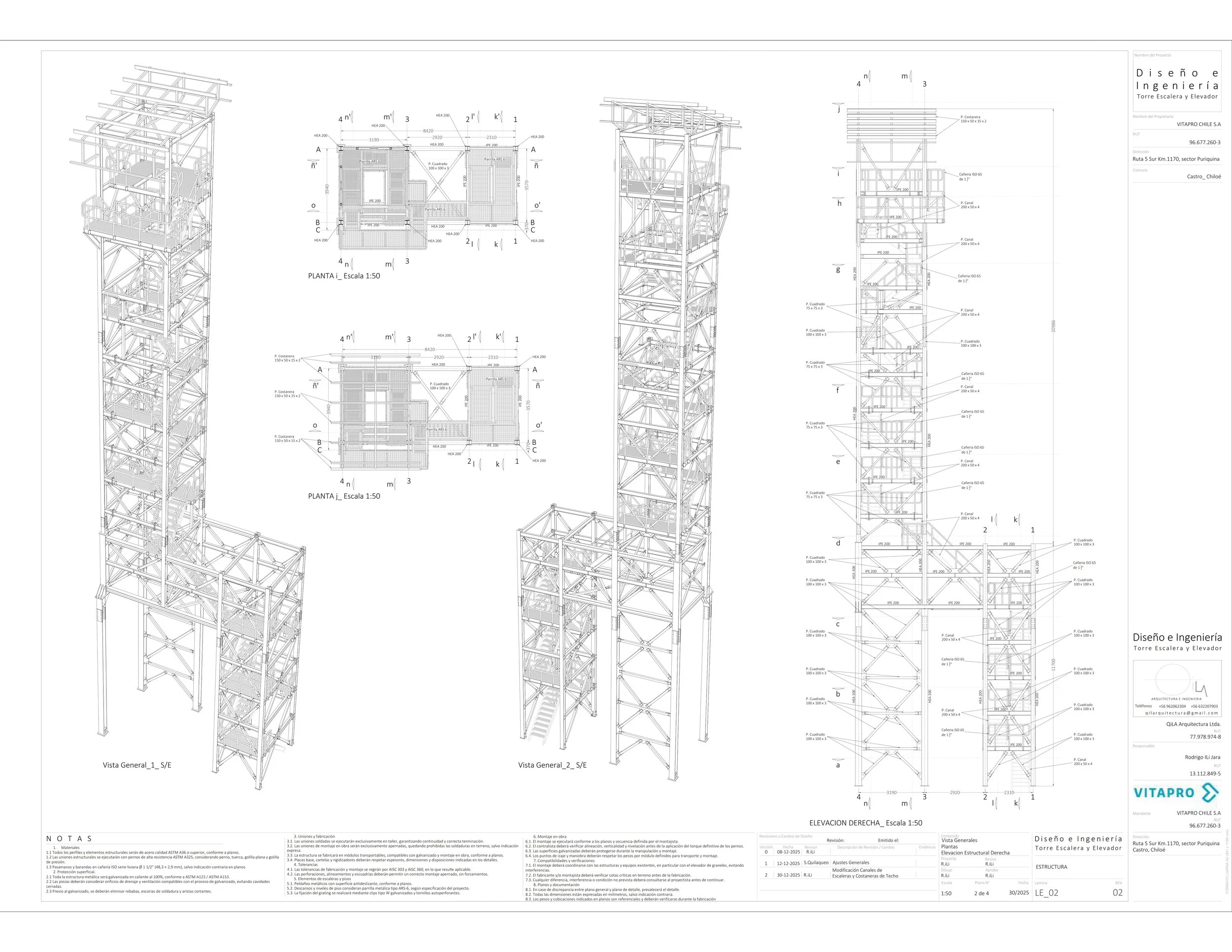
Ingeniería de detalles, asegurando que cada aspecto del diseño sea preciso y cumpla con las normativas.
Modificaciones estructurales que mejoran la eficiencia operativa de las instalaciones existentes.
Creación de plataformas operativas que facilitan procesos industriales y logísticos.
Diseño de sistemas para el manejo de materiales y residuos, garantizando el cumplimiento de normativas ambientales.
Desarrollo de proyectos de restauración y remodelación para edificios industriales, manteniendo su valor histórico y funcional.
Gestión de trámites y cumplimiento normativo, asegurando que cada proyecto se ejecute conforme a la legislación vigente.
Consultoría integral para la optimización de instalaciones, que incluye análisis de flujos y sostenibilidad.
Con casi 20 años de experiencia, nuestro enfoque busca transformar espacios industriales en entornos altamente funcionales y sostenibles.
Siguiente
Siguiente

Planificación Master Plan